Please note that Alton Towers Almanac is no longer maintained or updated, and almost all information will be out of date.

For the latest information, please visit Alton Towers’ official website.

ATAGalleryConstructionThirteenOther ImagesPlans
Click to view full size image
Image by: Alton Towers
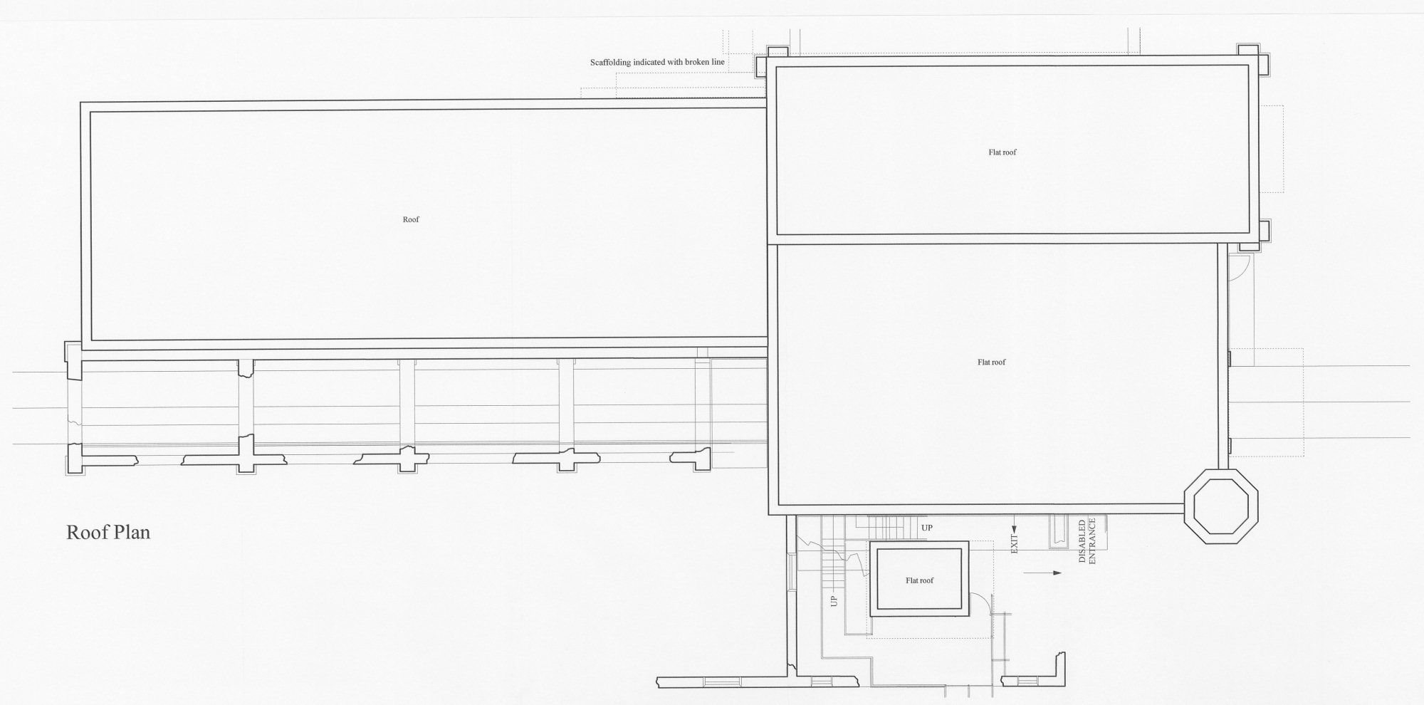
The station in "roof view" - showing how most of the platform will, unlike Rita, be under cover.
Spacer