Please note that Alton Towers Almanac is no longer maintained or updated, and almost all information will be out of date.

For the latest information, please visit Alton Towers’ official website.

ATAGalleryConstructionThirteenOther ImagesPlans
Click to view full size image
Image by: Alton Towers
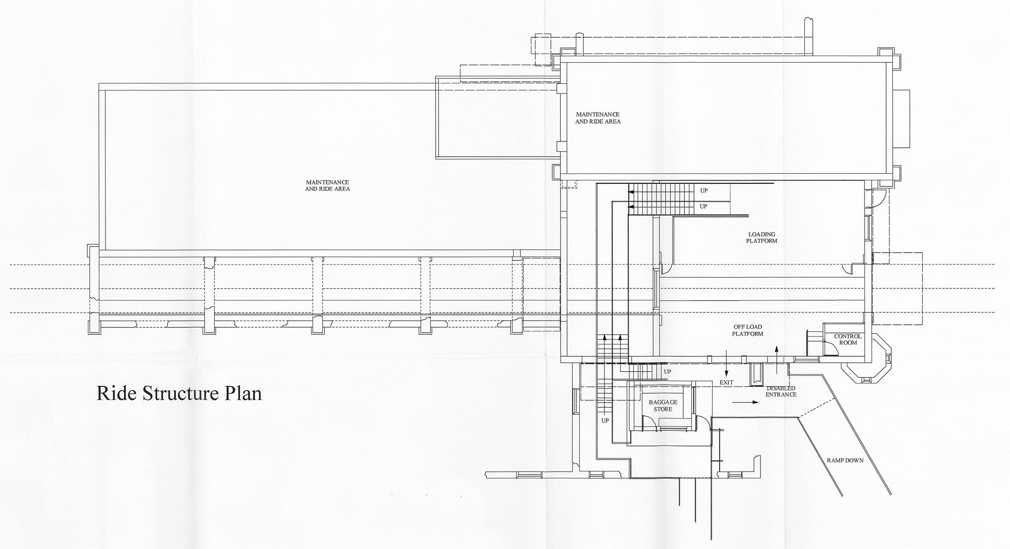
The station platform layout. Note the bridge that takes you over the track before boarding.
Spacer